Eneboligen har et moderne designuttrykk og gode, arealeffektive løsninger. Med fire soverom, to stuer og to bad på sine 140 kvadratmeter, gir dette huset rikelig med plass til en moderne familie. Planløsningen er smart utnyttet for å maksimere plassen.
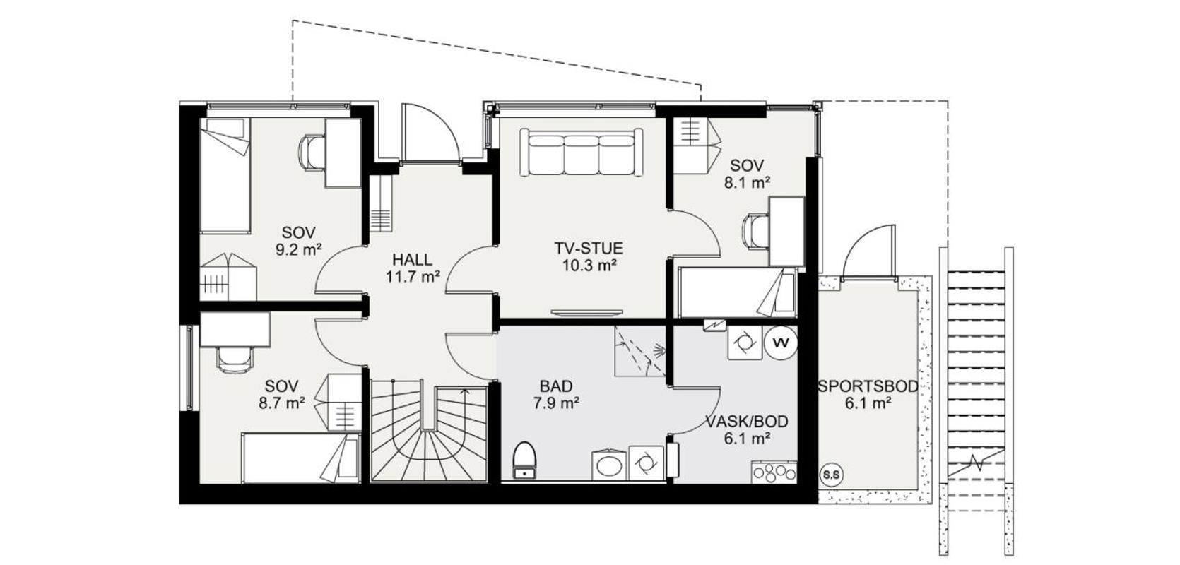
Signatur 308 er spesielt tilpasset en skrå tomt, og hovedinngangen er plassert i underetasjen. Under balkongen på hovedplanet finner du en romslig hall med inngang til en tv-stue, et stort bad med tilgang til eget vaskerom og to praktiske soverom. Det tredje soverommet ligger innenfor tv-stuen. På utsiden er det også en egen sportsbod, perfekt for oppbevaring av sportsutstyr eller hagemøbler.
På hovedplanet, som nås via en trapp fra underetasjen, finner du en åpen stue- og kjøkkenløsning. Et stort oppholdsrom skaper en luftig atmosfære, og kjøkkenet har god plass og moderne innredning. På dette planet er det også et romslig soverom med eget bad. Fra stueområdet har du utgang til en sjarmerende, skråstilt balkong som gir et flott utsyn fra husets front. En overbygd balkong på husets kortside er tilgjengelig fra stue- og kjøkkenområdet og inviterer til utendørsaktiviteter.
Signatur 308 er nøye tilpasset den skrå tomta det er bygget på, og arkitekturen tar hensyn til terrenget. Med moderne design, effektive planløsninger og tilpasning til skråningen, er Signatur 308 et attraktivt valg for de som ønsker et moderne funkishus tilpasset en skrå tomt.